ADU & Work Space, Bainbridge Island, WA
Scope: Creating a simple live-work space under the “same roof” but physically separated into two structures. The “live” space plays as well indoor as an outdoor one with the use of big bifold windows/doors.
building design
Engineering
Permit Submittal Documents












New Office Space, Bainbridge Island, WA
Scope: Creating an office space above an existing garage with a greater ceiling height and a separate access
building design
Engineering
Permit Submittal Documents
Construction
A bike shed for my daughter, Bainbridge Island, WA
Scope: We live in a very small home, being a downhill racer that she is many bikes are in her life and so the immediate need to build a space for them occurred. The shed was built so it can be easily disassemble for relocation as we are renting and on temporary status.
building design
all materials are leftover from projects and reuse
construction
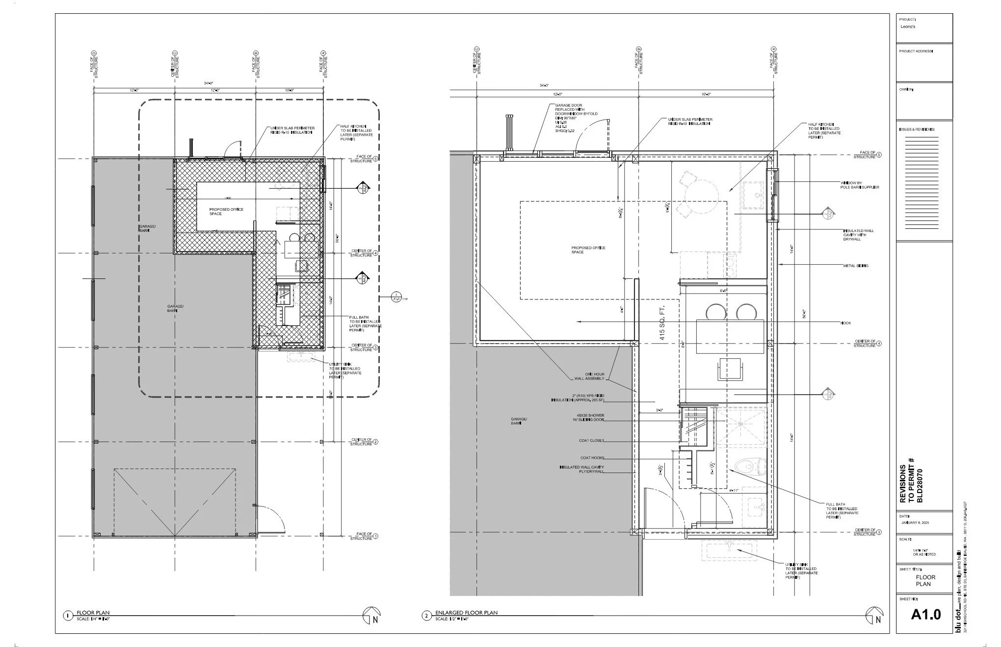
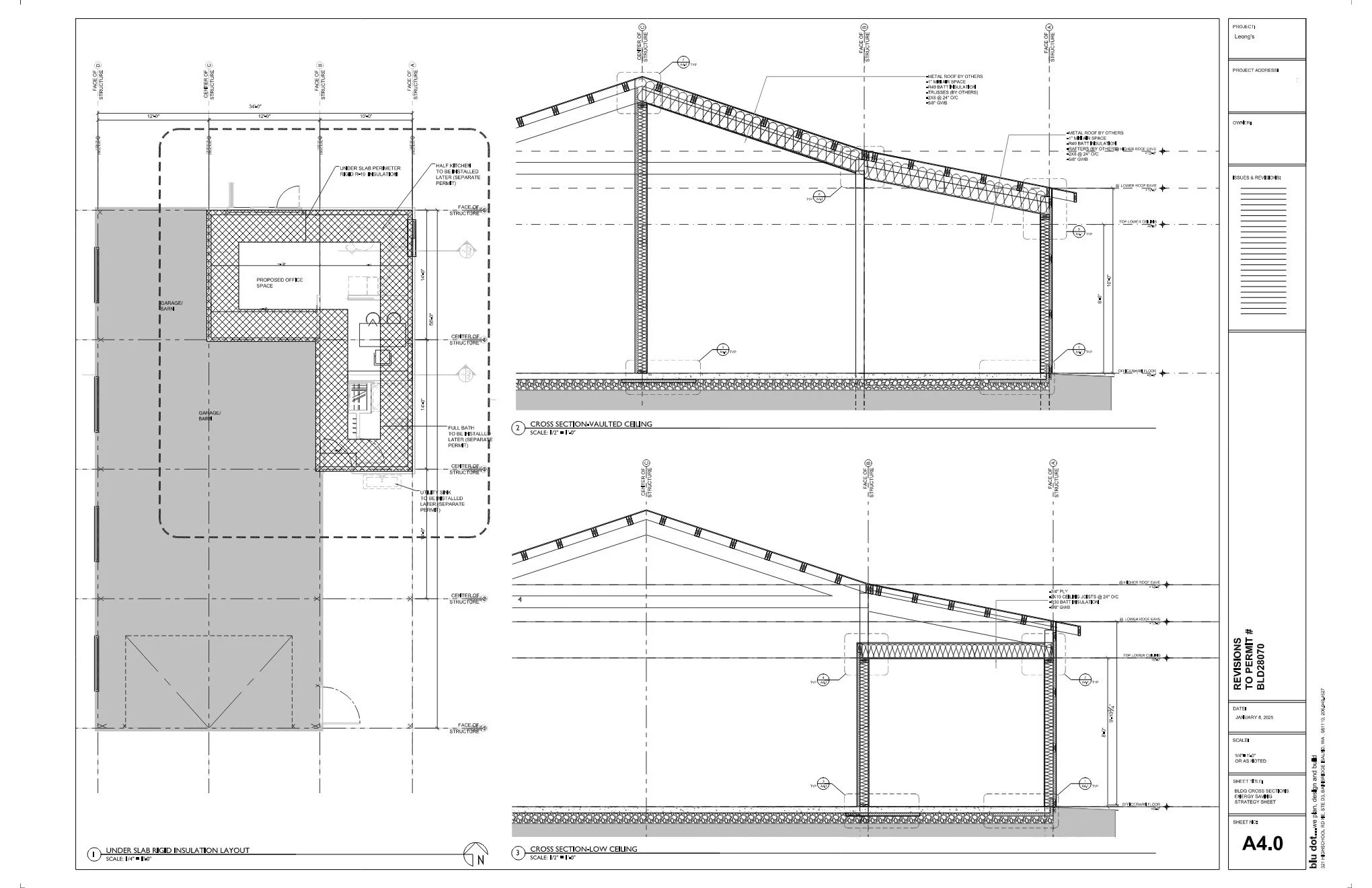
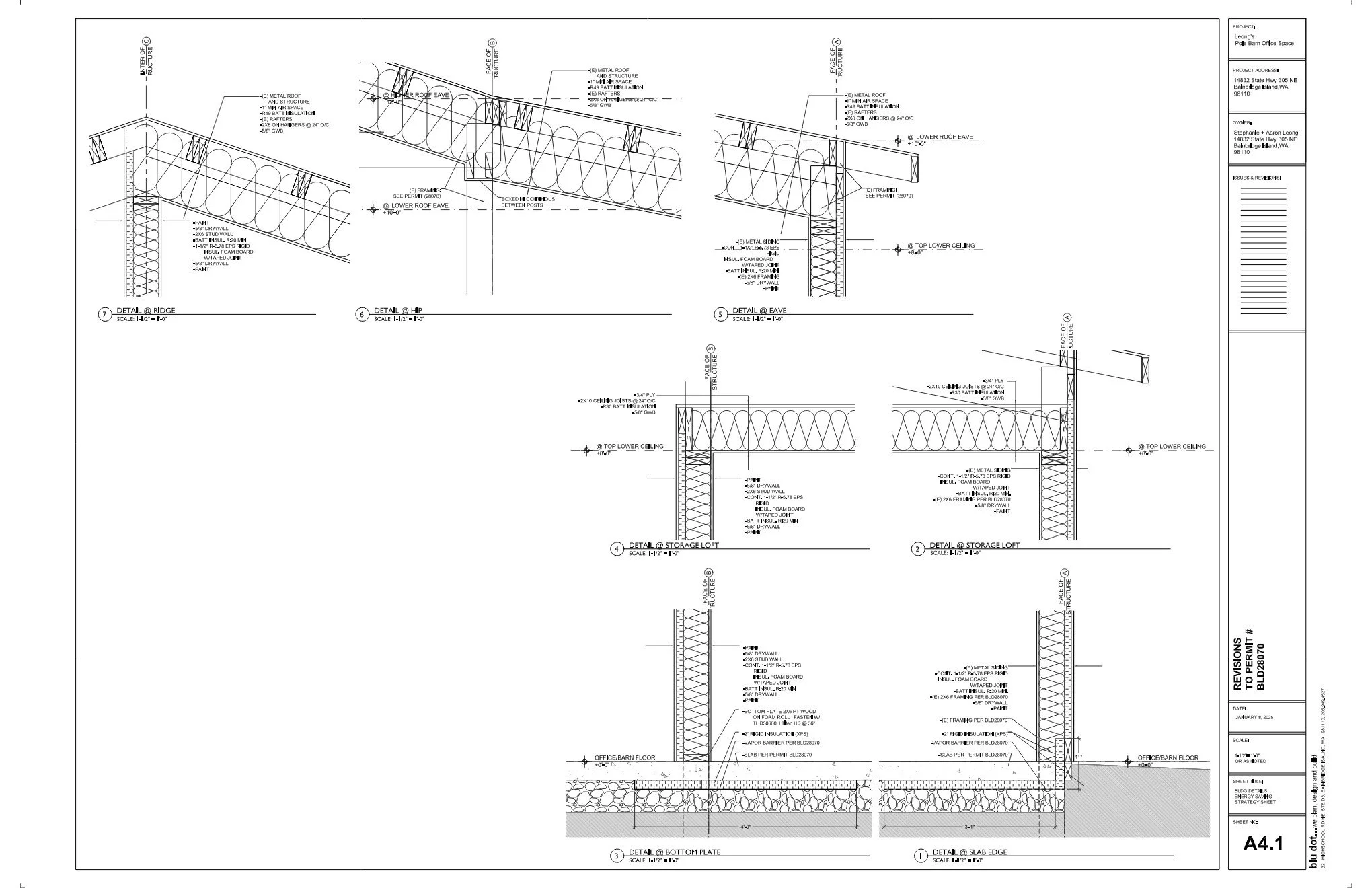
Office space, Bainbridge Island, WA
Scope: Creating a work space within a newly constructed barn.
building design
permit documents
construction
Covington mixed-use, Covington Washington
master planning,
site design
building design
floor plates design










Canyon Creek mixed-use, Kent Washington
building design
floor plates design







