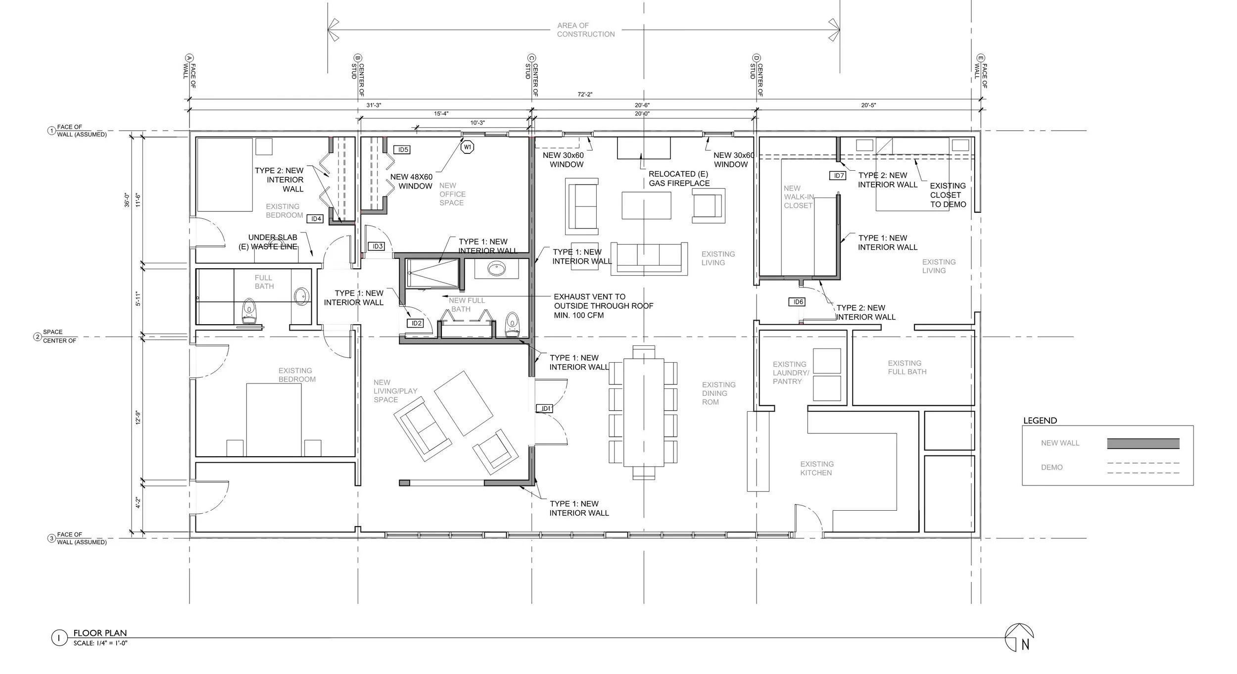
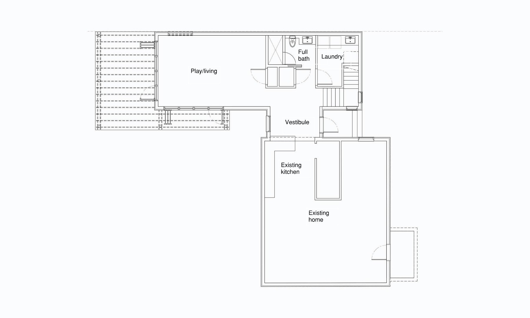
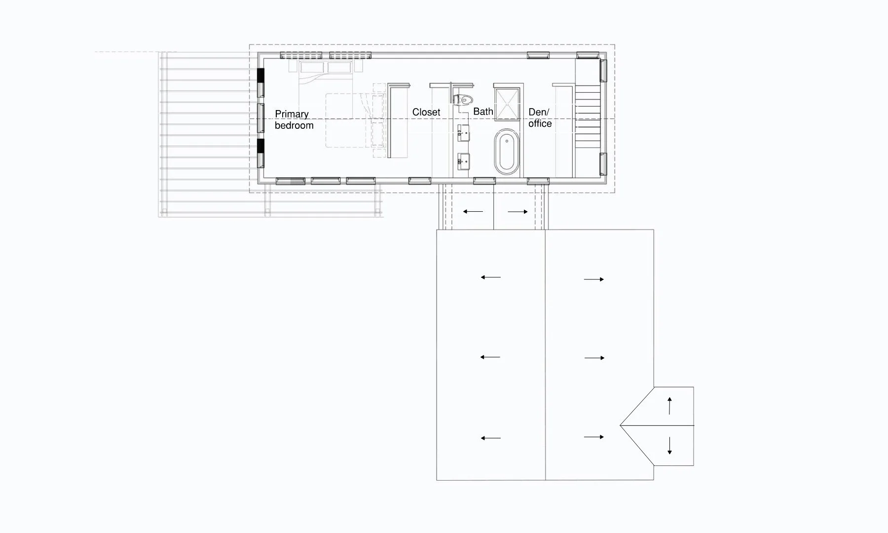
ADU & Work Space, Bainbridge Island, WA

Scope: Creating a simple live-work space under the “same roof” but physically separated into two structures. The “live” space plays as well indoor as an outdoor one with the use of big bifold windows/doors.

  • building design

  • Engineering

  • Permit Submittal Documents

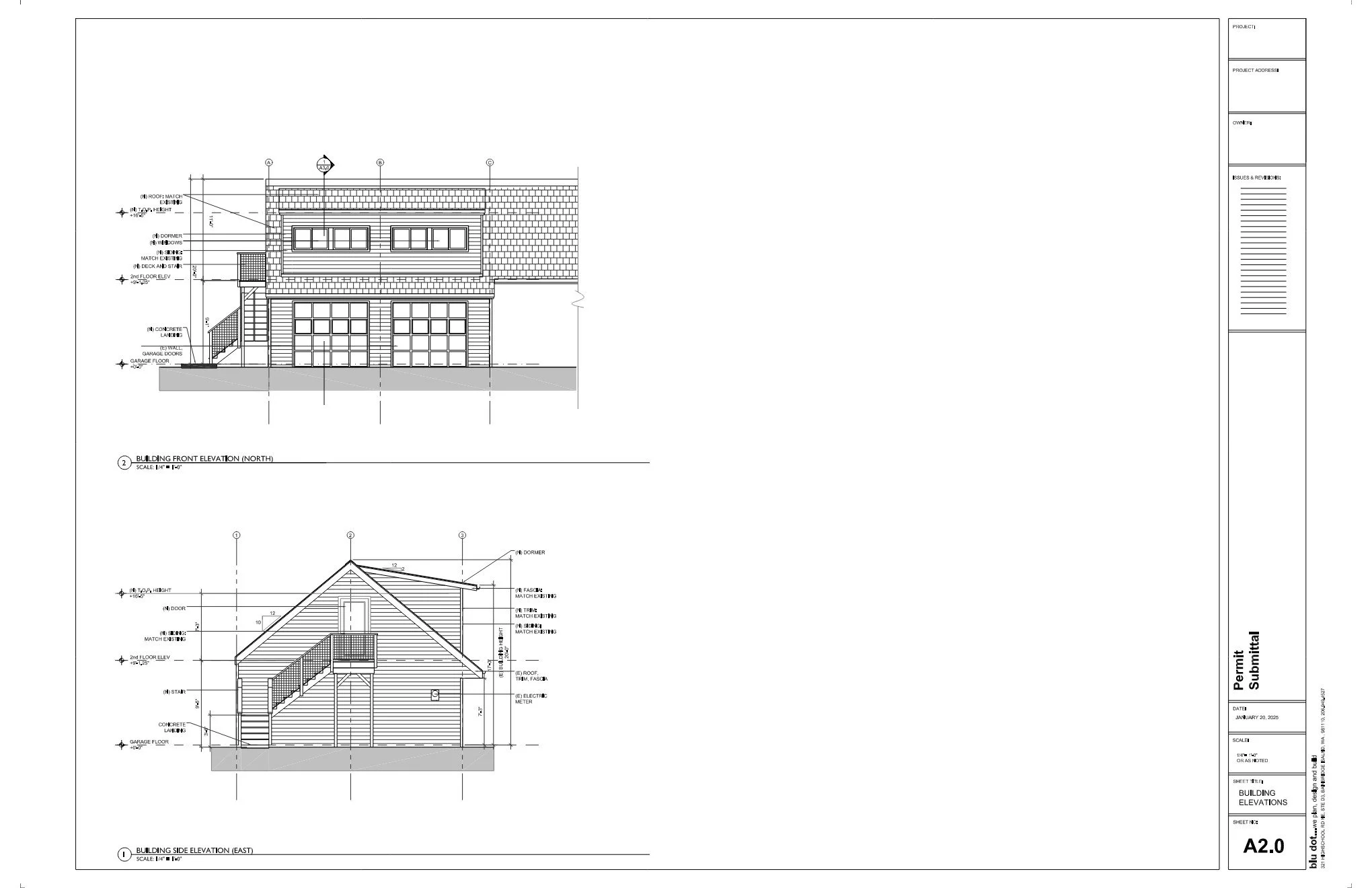
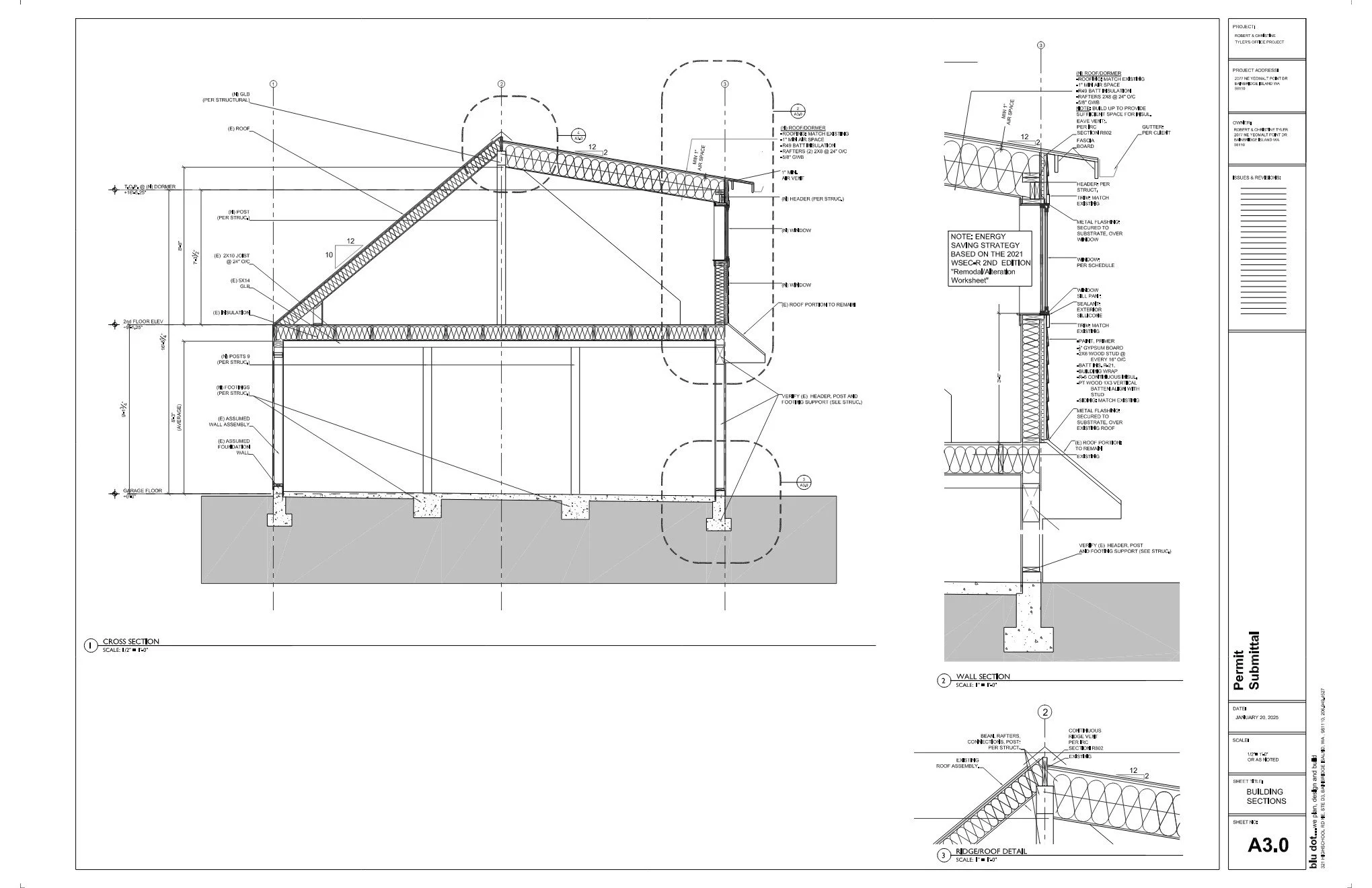
New Office Space, Bainbridge Island, WA

Scope: Creating an office space above an existing garage with a greater ceiling height and a separate access

  • building design

  • Engineering

  • Permit Submittal Documents

  • Construction

A bike shed for my daughter, Bainbridge Island, WA

Scope: My daughter, being a downhill racer, has lot of bikes, so, living in this really beautiful but very small place, the immediate need to build a space for them became urgent… This shed was built fast with the idea of being easily disassembled for relocation and in a temporary state

  • building design

  • reuse: all materials are leftover from projects

  • construction

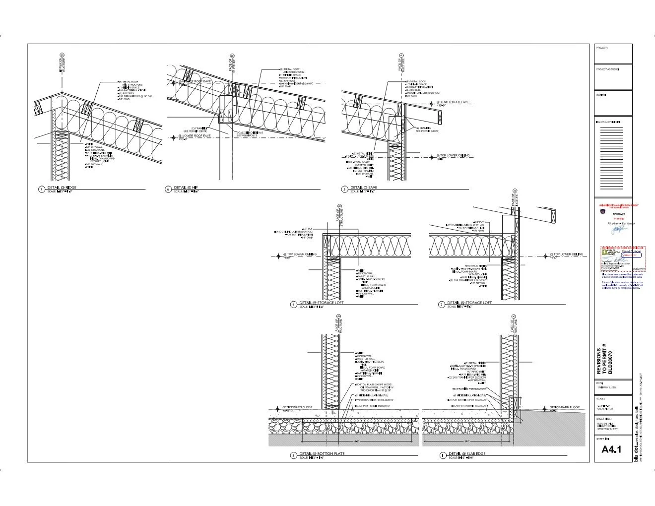
Office space, Bainbridge Island, WA

Scope: Creating a work/live space within a newly constructed barn.

  • building design

  • permit documents

  • construction

  • Project management

Covington mixed-use, Covington Washington

  • master planning,

  • site design

  • building design

  • floor plates design

Canyon Creek mixed-use, Kent Washington

  • building design

  • floor plates design